
PICARD immo presenteert u in het dorp Noiseux, tussen Marche-en-Famenne en Durbuy, deze charmante bungalow op een perceel van 911 m² in een aangename en rustige buurt.
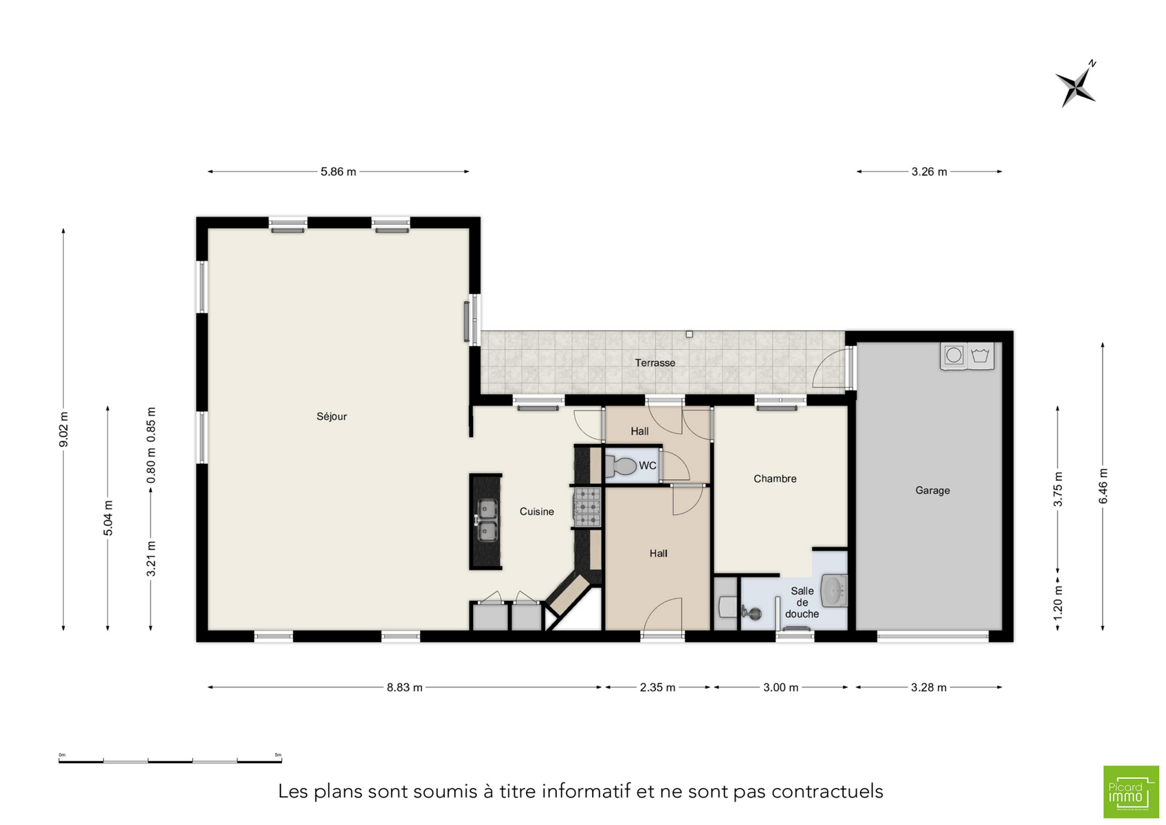
De woning beschikt over een grote, lichte woonkamer met een pelletkachel, een gezellige open keuken, een slaapkamer met aangrenzende doucheruimte en een ruime garage met wasruimte. De zolder biedt extra opbergruimte.
Buiten kunt u genieten van een aangenaam terras, een mooie tuin en meerdere parkeerplaatsen.
Deze woning combineert lichtinval, comfort, rust en functionaliteit, en dat alles in de directe omgeving van prachtige wandelroutes en alle voorzieningen van Marche-en-Famenne en Durbuy.
Opmerking: elektriciteit conform, centrale verwarming op gas met condensatieketel, pelletkachel, PVC-ramen met dubbele beglazing, EPC-label C.
Kom uw koffers neerzetten in dit huis dat op u wacht!
Verkoopprijs: 265.000 €, onder voorbehoud van aanvaarding door de eigenaars.
Wacht niet langer en kom dit charmante huis ontdekken. Volledig verkoopdossier, informatie en bezichtigingen: www.picardimmo.be - 084/468.400
Adres :
Quartier du Mayeur 82 - 5377 Somme-Leuze
Referentie | 6787890 |
---|---|
Categorie | Bungalow |
Gemeubeld | Nee |
Aantal kamers | 1 |
Aantal badkamers | 1 |
Tuin | Ja |
Garage | Ja |
Terras | Ja |
Parking | Ja |
Bewoonbare oppervlakte | 133 m² |
Oppervlakte van het terrein | 911 m² |
Beschikbaarheid | vanaf akte |
Bouwjaar | 2008 |
---|---|
Parking binnen | Ja |
Parking buiten | Ja |
Aantal parking binnen | 1 |
Aantal parking buiten | 4 |
Verdieping | 0 |
---|---|
Verdiepingen - aantal | 0 |
Oriëntatie (achtergevel) | noordwesten |
---|---|
Type buurt | landelijk |
Oriëntatie van de voorgevel | zuidoosten |
Oriëntatie van het terrein - terras | noordwesten |
Oriëntatie van het terrein - tuin | noordwesten |
O-Peil (overstromingstype) | niet gelegen in een overstromingsgevoelig gebied |
Breedte aan straatkant | 27 |
---|---|
Toiletten - aantal | 1 |
Aantal douchekamers | 4 |
Slaapkamer 1 (oppervlakte) | 10.5 m² |
Terras - aantal | 1 |
Woonkamer (oppervlakte) | 53 m² |
Keuken (oppervlakte) | 15 m² |
Terras 1 - oriëntatie | noordwesten |
Keuken | Ja |
---|---|
Type verwarming (type (ind/coll)) | individueel |
Lift | Nee |
Dubbele beglazing | Ja |
Type verwarming | gas cv |
Keuken - type | geïnstalleerd |
Badkamer (type) | douche |
Wasplaats | Ja |
---|---|
Zolder | Ja |
Onder BTW stelsel | Nee |
---|
Riolering | Ja |
---|---|
Elektriciteit | Ja |
Water | Ja |
Type schrijnwerkerij | pvc |
---|
Bodemattest | Ja |
---|
Bestemming gebouw - type | privé - woning |
---|
Kadastraal inkomen (€) - bedrag | 819 € |
---|
Regenwaterput | Ja |
---|
EPC (Kwh/m²/j) | 230 |
---|---|
CO2 uitstoot | 42 |
E totaal (Kwh/jaar) | 30546 |
EPC unieke code | 20250717003457 |
EPC valid until (datetime) | 17-07-2035 |
EPC datum (datetime) | 17-07-2025 |